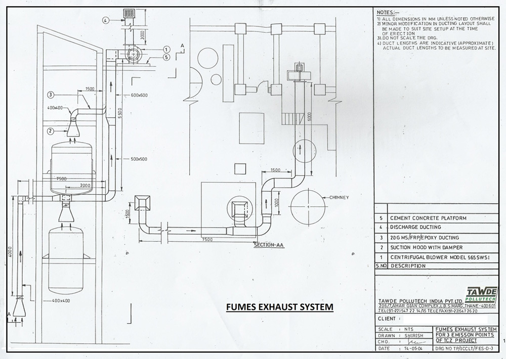
Exhaust System